发布者: 杰立装饰浏览次数:
动车国际-中式的意境之美
灵感来源
谈庄子,画国画,深研《金刚经》
生活里要有一点灵气参悟禅道,独爱东方的留白品一杯茶,百味尽生
小酌优胜一晌贪欢人生最曼妙的风景 是内心的淡定与从容——
新中式 - 大.气
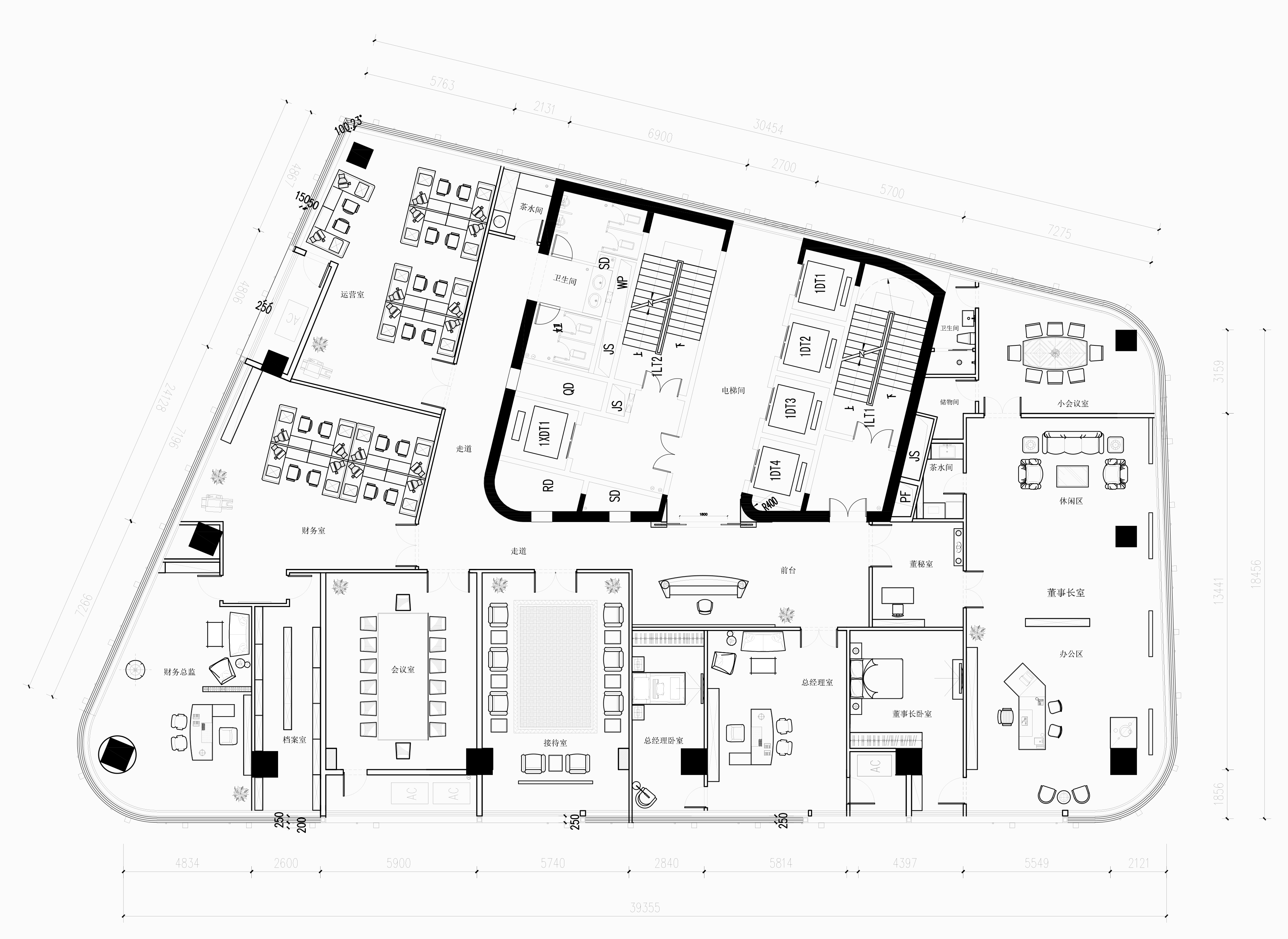
该项目位于深圳坂田动车国际
项目名称:动车国际
项目地址:深圳坂田动车国际19楼设计方案
设计风格:现代中式
空间格局:董事长、经理办公室、公共办公区、接待室、运营室等;
设计主材:中式装饰画、瓷砖地板、木饰面、大理石等;
生活在喧嚣的都市,每个人都向往返璞归真的生活。
将中式元素以生活的面目表达出来再现于建筑之中 古典雅致或禅意深远的心性也能一下子沉淀下来,
出于自然 而高于自然
情景交融的艺术与哲思
让空间也多了一份含蓄的美
格调典雅质朴,色彩稳重成熟,布局阴阳协调,韵味浓烈悠长,充分体现了中国传统美学的精神,散发出亦古亦今的层次之美。
新中式是传承传统中式风格的精髓,通过与现代潮流的对话碰撞而产生的创新,在设计上提炼了其中经典元素并加以简化和丰富,在家具形态上更加简洁清秀,同时又打破了传统中式空间布局中等级、尊卑等文化思想,空间配色上也更为轻松自然
简化改良版的中式桌椅,散发着清雅气质之美,背后的组合装饰画更是别出心裁。
满腹经纶、一纸书香,提到文人我们总会有这样的印象,一个简约大气书法、古色古香的书架,沉稳的深木色,沉淀的优雅。


