发布者: 杰立装饰浏览次数:
深圳市杰立装饰设计工程有限公司再传捷报,又成功签约了深圳市深圳湾一号。
后海中心区东滨路与科苑大道交汇处西北侧,紧邻深圳湾内湖的一线海景地块,也是从南侧深圳湾口岸所看到的第一个项目。是集办公、居住、酒店、商业于一体的高端城市综合体。
项目名称:深圳湾一号
项目地址:深圳市后海中心区
签约时间:2018年6月
设计风格:现代风格
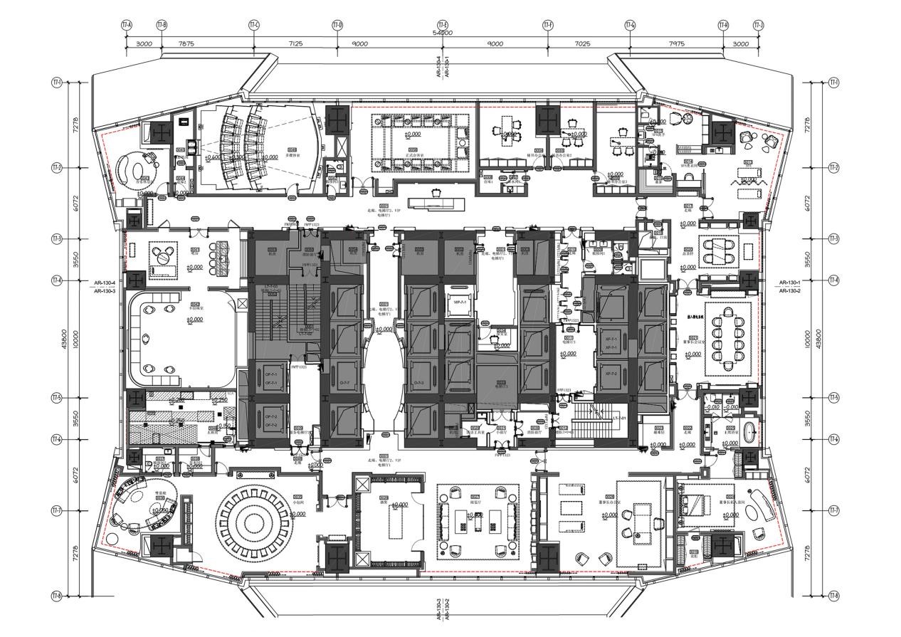
空间格局:董事长办公室、会议室、小包间、阅览室、酒窖、品茶区、会客室、职员办公室、主卧、次卧、书房、客厅、餐厅、厨房、娱乐室、主卫、次卫、阳台等;
设计主材:大理石墙面、木饰面、布艺硬包、瓷砖地板、木地板、皮革硬包、艺术挂画、家具皮革等;
现代风格以简洁的表现形式来满足人们对空间环境那种感性的、本能的和理性的需求,现代简约风格非常讲究材料的质地和室内空间的通透哲学。一般室内墙地面及顶棚和家具陈设,乃至灯具器皿等均以简洁的造型、纯洁的质地、精细的工艺为其特征。尽可能不用装饰和取消多余的东西,认为任何复杂的设计,没有实用价值的特殊部件及任何装饰都会增加建筑造价,强调形式应更多地服务于功能。室内常选用简洁的工业产品,家具和日用品多采用直线,玻璃金属也多被使用。少即是多,多即是少。以宁缺勿滥为精髓,合理的简化居室,从简单舒适中体现生活的精致
平面方案

效果图表现

